
一、 物流中心整体规划设计思路
1,物流中心规划设计思路
一般情况下,我们按照以下设计思路来做物流咨询规划:
1)确认客户物流的行业特点,分析客户整体供应链的特点;
2)详细数据分析,了解物流特点,确认物流规划需求;
3)结合地块特点,进行概念设计;
4)规划自动化程度;
5)规划设备方案;
6)规划动线;
7)设计仓库内部布局图;
8)规划详细的作业流程,规划物流信息系统;
9)规划组织结构与人员配置;
10)比较规划方案能力与需求值。
本文分享案例中的物流中心,主要是负责便利店的常温商品配送,而且这些商品在配送中心是存储型模式。由于便利店的店面小,所以其物流中心配送具有如下这些特征:主要以拆零配送为主,拆零比率高达85%-90%;配送商品以少批量、多批次为主;配送周期短,1天1配或2天1配等。因此在规划时,参考一些便利物流行业的标杆,比如美宜佳物流、可的物流、全家物流、7-11物流等,再加入企业自身的业务特性,形成最终方案。
客户在选租仓库或者选用仓库时,有时候很难找到非常标准好用、价格又便宜的仓库,综合比较后,最终会选择性价比最高、但可能是不规则的仓库,这会给仓库规划增加难度。本文分享的2个案例就是这种情况。
2,数据分析,明确规划需求
任何一个物流咨询规划的项目,都要明确规划需求,需要满足未来几年发展需要,细化来讲,需要设计多少个整箱拣选点、多少个拆零拣选点、库容应该设计多大等等。

(表1 需求收集表)
对于有些项目,还会做进一步的细化数据分析,比如EIQ分析等。
3,物流中心建设模式
本文分享的2个案例都是采用半自动化运作模式,一次规划到位和一次性基建改造到位,少量物流设施分批到位。物流中心自动化程度规划原则是“最合适原则”,而非“最先进原则”,因此将仓库建设模式定位半自动化。从半自动化技术导入角度而言,考虑重点是解决拣选作业、电子设备辅助系统及物料搬运过程中的机械化问题。
1)基于无线射频技术的RF无线手持设备系统;
2)电子标签辅助拣选的拆零分拣系统;
3)自动+手动结合的传输带输送系统;
4)货品的立体化存储和进出货架的自动化指导;
5)采用高位叉车、平衡重叉车以及电动叉车解决物料搬运问题;
6)自动化IT管理控制系统,引入先进、实用的仓库管理系统(WMS)。
4,规划设备方案
现代物流中心用到的设备很多,需要进行细致的规划,一般会有这些设备:
1)存储设备:为了增加仓库的存储能力,横梁式的高位立体式货架是基本配置;
2)整箱拣拣设备:液压车(或者电动平移车)+贴标拣货(或者RF拣货);
3)拆零拣货设备:以电子标签+流利架+传输带+废纸回收传输带为主要规划方案,辅助设备还有废纸堆垛机、周转箱、周转箱封口、条码打印机等耗材;
4)无线手持设备RF,及仓库无线AP等;
5)先进的WMS系统;
6)电动叉车:电动平移叉车,前移式高位叉车,及平衡重叉车等;
7)电子看板:各种类型的、布置于不同货区的电子看板。
5,功能分区规划
1)收货暂存区:待收货及已收货未上架的商品暂存区域;
2)存储区:所有商品的存储区域,包含整箱拣选商品和拆零拣选商品;
3)拣选区:整箱及拆零待拣选的商品存放区域;
4)集货区:此区域用来收集整箱区、拆零区、贵重区等拣选完成的货品,并在集货区按门店进行摆放;
5)退货区:收回下游客户的退货,存储管理,并将退货交接给供应商;
6)贵重品区:贵重商品的存储和拣选区域;
7)辅助功能区:比如叉车充电区域、托盘/周转箱等设备存放区、废纸箱存放区等,以及其他办公生活区域,包括洗手间、打单室、机房、办公室、会议室等。
二、不规则物流中心咨询规划案例分析
案例一:上海某便利物流中心规划
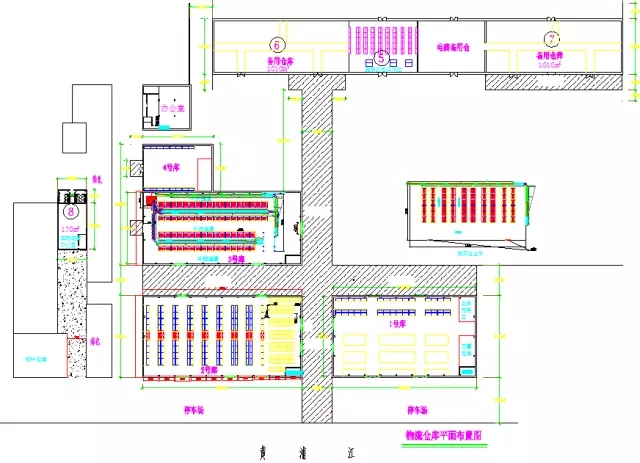
整个物流中心库内面积约8500平方,由多个小粮库改造并整合而成,每个仓库不超过2000个平方,需要满足550家便利门店以及少量电商业务的配送。其中,因电商业务量还比较小,在此案例中不重点介绍。便利门店配送,品项需求3000个,其中整箱500个,拆零2500个。
物流中心仓库平面图如下,园区出入口在左上:

我们在规划功能分区时考虑到如下这些因素:
1)首先,整箱和拆零商品的存储和分拣需要尽量挨在一起,因此基本选定1-3号库作为整箱和拆零商品的存储和分拣区域;
2)其次,所有小仓库都没有月台可卸货,同时进货车辆偶尔会有些大车型,需要空间更大,因此靠黄浦江一侧规划为收货用;
3)最后,将4号仓规划为退货区,5号仓的一半规划为电商用途,6号、7号仓规划为备货仓。
功能分区规划的难点是:如何在1500平方的小库里装下2500个拆零商品的部分存储和拣选,并能将电子标签+流利架+传输带+废纸回收传输带等半自动分拣设备规划进来?仓库可用高度最低处有7.8米,而拆零流利架最高也就用到2.2米,因此规划钢平台,将平面扩展。我们总共做了十几稿方案,取其中比较有代表性的两稿方案来分析:

(图2 方案一的地面一楼平面布局图)

(图3 方案一的钢平台上方平面布局图)
方案一,在地面一楼设计成流利架+无动力和动力传输带+废纸回收传输带的半自动分拣方案,共有1360个拣选位。因单条线比较短,若都设计成独立、互不相干的分拣线,则周转箱满箱率会比较低,因此设计U型共2条分拣流水线,外U跟内U分别相连,所有空周转箱都是通过右下一起供应。而上方线体的周转箱,则是由下方的传输带输送,在上方线体的最左端增加条码扫描器,扫描周转箱条码判断周转箱是否满箱,未满箱的周转箱弹出到对应线体,以继续拣货,直到流水线末端。废纸箱回收传输带的流转方向与周转箱传输带同向,最终送到仓库的右上角进行收集。
钢平台上方用于C类拆零拣选商品,为了控制整体的投入成本,电子标签采用一对五标签,只投入动力传输带(传输满箱周转箱)和废纸回收传输带,总共1200个拣选位。钢平台上设置两个活动栏杆,通过叉车将商品补货至钢平台上。动力传输带右侧连接下坡皮带机,周转箱输送至一楼进行封箱上位集货操作。而废纸回收传输带则直接从钢平台上方往下掉,地面上的废纸箱收集处用铁丝网围起来。
规划中很重要的一个原则是动线不交叉、通道顺畅。但U型传输带相连处即图上左侧,被传输带阻断。为了保留左侧通道,保证通道顺畅,我们想了很多解决方案,比如传输带在这个位置搭个桥架,以保证电动平移叉车可以通过,但因为仓库本身的局限导致U型两条长端间的距离太短,70cm高的动力线传输带无法爬坡到220cm高又降回到70cm高,该方案行不通。方案二是在此处采用可旋转式线体,废纸箱回收传输带搭桥架实现,该方案可行。
整体方案经过方方面面论证,都觉得不错了;但是在传输带厂商进行方案细化时,发现从钢平台下来的下坡皮带机和一楼的废纸箱回收线在右侧会碰到一起,因此该方案可行性又遭到质疑了。


与方案一相比,方案二最大的差别是将废纸箱收集点设计在左上角。因为方案一在废纸箱回收传输带设计上碰到困难,从仓库整个空间来看,最上方从左向右的通道使用率最少,所以放弃从左向右的通道也可以。另一方面,3号仓拆零商品的补货是来自于1号仓及2号仓,从右下的门进来。因此,整体的从左向右的通道使用率比较少,所以也不处理U型传输带相连处了,中间通道也只能从右向左行驶然后再退出去了。
至此,方案基本定稿,与货架厂商、传输带厂商一起进行方案细化设计。钢平台上放1200个SKU的拆零商品空间足够,可以考虑缩减钢平台面积,面积缩减100多个平方,设备投入减少近10万;同时钢平台的搭建采用一楼流利式货架的立柱,大大减少钢平台的造价,造价减少约30%。
该案例的最终定稿方案,如下图所示:

(图6 案例一的仓库整体平面布局图)
案例二:广东某便利物流中心规划
整个物流中心库内面积约7300平方,需满足350家便利门店的配送,品项需求3000个,其中整箱500个,拆零2500个。仓库形状非常不规则,具体如下图:

(图7 案例二的仓库平面图)
针对这种不规则仓库的规划思路:
1)首先,整箱商品的存储和拣选区,找相对规则的区域,又比较靠近收货月台,比如图中A区+B区;
2)其次,靠近进出门和月台的,如C区下半部分,作为集货区;
3)近2500个拣选位的拆零拣选区域设计,需要比较长的一块区域,考虑C区上半部分+D区;
4)退货区、叉车充电区等,则在主功能区规划好后、余下的边角区域寻找。
规划出多个方案,并进行优劣对比分析,最终选定方案,仓库整体平面布局图如下所示:

(图8 案例二的仓库整体平面布局图)
延伸阅读: 《成为物流系统设计达人需必备哪些能力?》

本文转载自:海鼎,如有转载请注明来源(物流搜索网)!若您的公司需要报道,请联系记者:微信号 lilinou
点击继续加载下一条